Nowoczesne apartamenty w samym sercu Mierzyna, CENA od 699.000 do 769.000 zł.
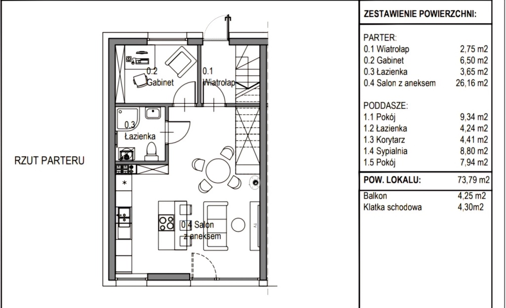
Urokliwe, kameralne osiedle w Mierzynie tworzyć będzie osiem nowoczesnych energooszczędnych domów dwurodzinnych, w których zaprojektowano szesnaście apartamentów. Lokale 5-pokojowe, każdy o powierzchni użytkowej po 73,79 m2 (powierzchnia całkowita lokalu wynosi: 117,25 m kw.), posiada balkon i przydomowym ogródek. Do każdego apartamentu przynależą dwa miejsce postojowe przed budynkiem. Standard wykończenia lokali -deweloperski i obejmuje wykonanie m in.: ogrzewania podłogowego w każdym z pomieszczeń, systemu domofonowego i instalacji pod kominek. Na lokal przysługuje 5-letnia rękojmia od dewelopera. Osiedle całkowicie ogrodzone, w którym przewidziano dwa osobne wjazdy z bramą otwieraną na pilota. Inwestycję wyróżnia niezaprzeczalnie interesująca i gustowna architektura z dozą elegancji. Energooszczędność domów mają zapewnić przyjęte rozwiązania architektoniczne: izolacje ścian i podłóg, stolarka okienna. Dla miłośników dwóch kółek pomyśleliśmy o wiacie osiedlowej ze stojakami dla rowerów. Zakończenie prac budowlanych całego osiedla nastąpi w trzecim kwartale 2025 roku.
Atuty nieruchomości:
Funkcjonalny rozkład pomieszczeń
Powierzchnie lokali: 73,79 m kw. (powierzchnia całkowita: 117,25 m kw.)
Do każdego lokalu przynależy balkon i ogródek
Ponadnormatywna wysokość pomieszczeń na parterze 275 cm, na I piętrze 260 cm
W standardzie wykonana: ogrzewanie podłogowe i instalacja pod kominek.
Dwa miejsca postojowe GRATIS
Wiata osiedlowa ze stojakami na rowery
Idealna lokalizacja: blisko ścieżek rowerowych, terenów sportowych i rekreacyjnych
Dojazd od ul. Topolowej nową infrastrukturą drogową
Zapraszam na prezentację.
