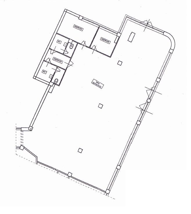
Do wynajęcia lokal handlowo – usługowy o powierzchni 204 m2 położny na parterze budynku mieszkalno – usługowego.
Szerokie witryny, dwa wejścia z poziomu 0 (bez schodków).
Powierzchnia najmu nadaje się na każdą działalność: biurową, usługową, handlową, itp.
Na parterze znajduje się:
• recepcja,
• 3 gabinety (13/13/13 m2),
• sala konferencyjna (34 m2),
• zaplecze socjalne,
• pomieszczenie socjalne,
• WC.
Lokal z dużym potencjałem, posiada dodatkową przestrzeń w postaci antresoli o powierzchni 44 m2, o pełnej wysokości i nośności.
Ogrzewanie i ciepła woda z sieci miejskiej. W lokalu rozprowadzona jest instalacja alarmowa.
Czynsz do zarządcy w wysokości ok. 2.800 zł zawiera zaliczki na ciepłą i zimną wodę, odprowadzenie ścieków, ogrzewanie, wywóz śmieci.
Dodatkowo płatna energia elektryczna według zużycia.
Wymagana kaucja w wysokości 6000 zł.
Lokalizacja w żółtej strefie SPP, duża liczba miejsc parkingowych w okolicy.
